應用領域
儲能變流器 |
風電變流器 |
光伏逆變器 |
軌道交通輔助電源 |

應用領域
產品特點
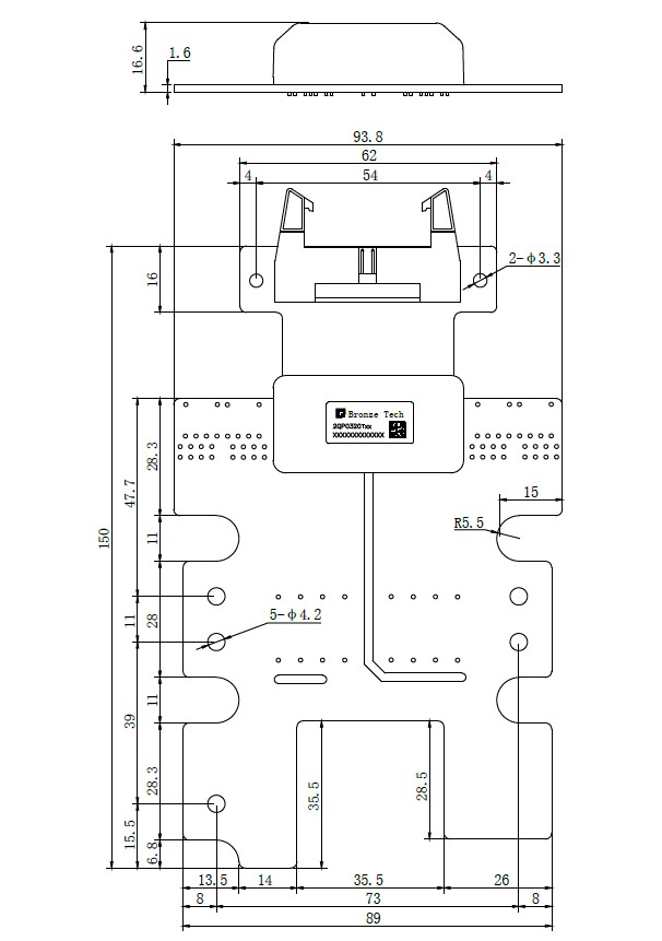
關鍵參數


